On The Boards: Q2 2025
A look at a few projects currently in development at Union.
Conanicut Island Sailing Foundation (CISF)
Jamestown, Rhode Island
Union is partnering with the Conanicut Island Sailing Foundation (CISF) to design a new sailing center campus at Fort Getty in Jamestown, RI. This exciting project will include a multipurpose building, outdoor classrooms, and a workshop to support CISF’s mission of engaging people of all ages in the marine environment through sailing and education. Construction is set to begin in September.
Lightkeeper’s Village Cottages & Community Building
Lewes, Delaware
A new neighborhood in coastal Delaware, Lightkeeper’s Village brings together 102 cottage-style homes and a central community building designed for connection and wellness. The 3,000-square-foot facility features shared spaces including a community room, fitness area, and even a sauna—because every village deserves one. With builder-friendly plans and a walkable layout, the site emphasizes neighborly living and a strong sense of place.
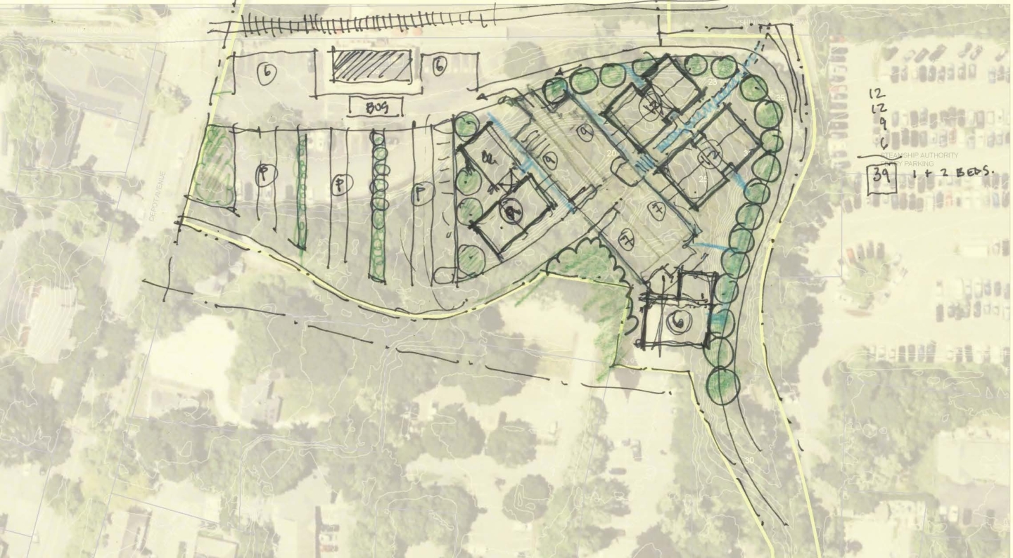
Falmouth Station Workforce Housing
Falmouth, Massachusetts
A new workforce housing community at 59 Depot Avenue will bring much-needed rental homes within walking distance of Main Street’s shops, the Shining Sea Bike Path, and the Falmouth Bus Station. Developed in collaboration with the Falmouth EDIC under a MassDOT ground lease and funded by a Community Planning Grant, the project envisions sensitively scaled multi-family buildings arranged around shared green lawns. Our team’s work includes architectural concept design, massing and site studies, evocative renderings, and preliminary cost estimates. Following community input gathered during a spring charrette, we’ll refine the design and move toward construction later this year.
